Skip to main content

Novo Horizonte


Em busca de disponibilizar conforto e sofisticação para o seu cotidiano apresentamos o Ed. Varandas do Horizonte.  

O Edifício foi pensado para proporcionar aconchego, comodidade, modernidade e tranquilidade. Queremos que você, futuro morador, sinta-se confortável em cada um dos ambientes, pensados para facilitar o seu dia a dia.  

O Ed. Varandas do Horizonte apresenta um visual fascinante, proporcionado pela riqueza de detalhes oriundas do projeto.  

Adquirindo um apartamento, você terá a sua volta uma exuberante paisagem natural, além de apreciar, do aconchego de seu lar, uma vista admirável para o horizonte!  

Varandas do Horizonte  

 LOCALIZAÇÃO DO PROJETO  

Rua dos Ipês, 176, Novo Horizonte, Sabará/MG 

 METRAGEM  

59m² a 143m² 

PREVISÃO DE TÉRMINO DA CONSTRUÇÃO 

Dezembro de 2025  

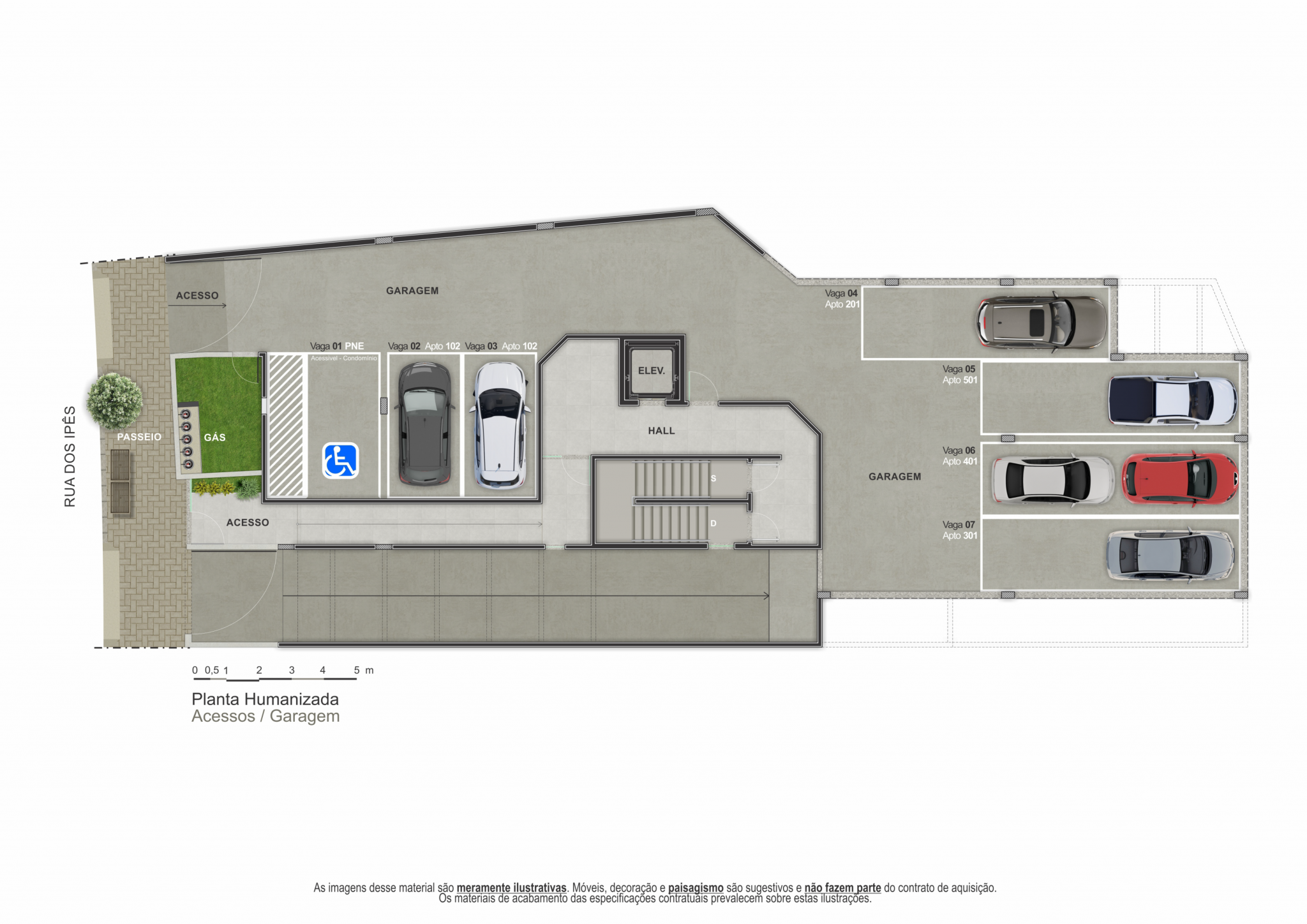
Os moradores do Ed. Varandas do Horizonte poderão aproveitar o que há de mais moderno em termos construtivos. Conheça as características do empreendimento.  

  • 12 unidades  
  • 2 e 3 quartos  
  • Apartamentos com área privativa  
  • Apartamentos de Cobertura
  • 2 Vagas  
  • Medição de água e gás individualizado 
  • Condomínio econômico  

Usufrua de todo conforto que a edificação proporciona. Garanta o seu apartamento no Ed. Varandas do Horizonte! 

Contato pelo WhatsApp